Распечатать

Станция 2ЦМН 4-6 с блоком SKF-01 (220В)

Уточняйте
наличие
Производитель
Страна

Россия

Код товара

34522

Подача

11 м3/час

Напор

40 м.в.ст.

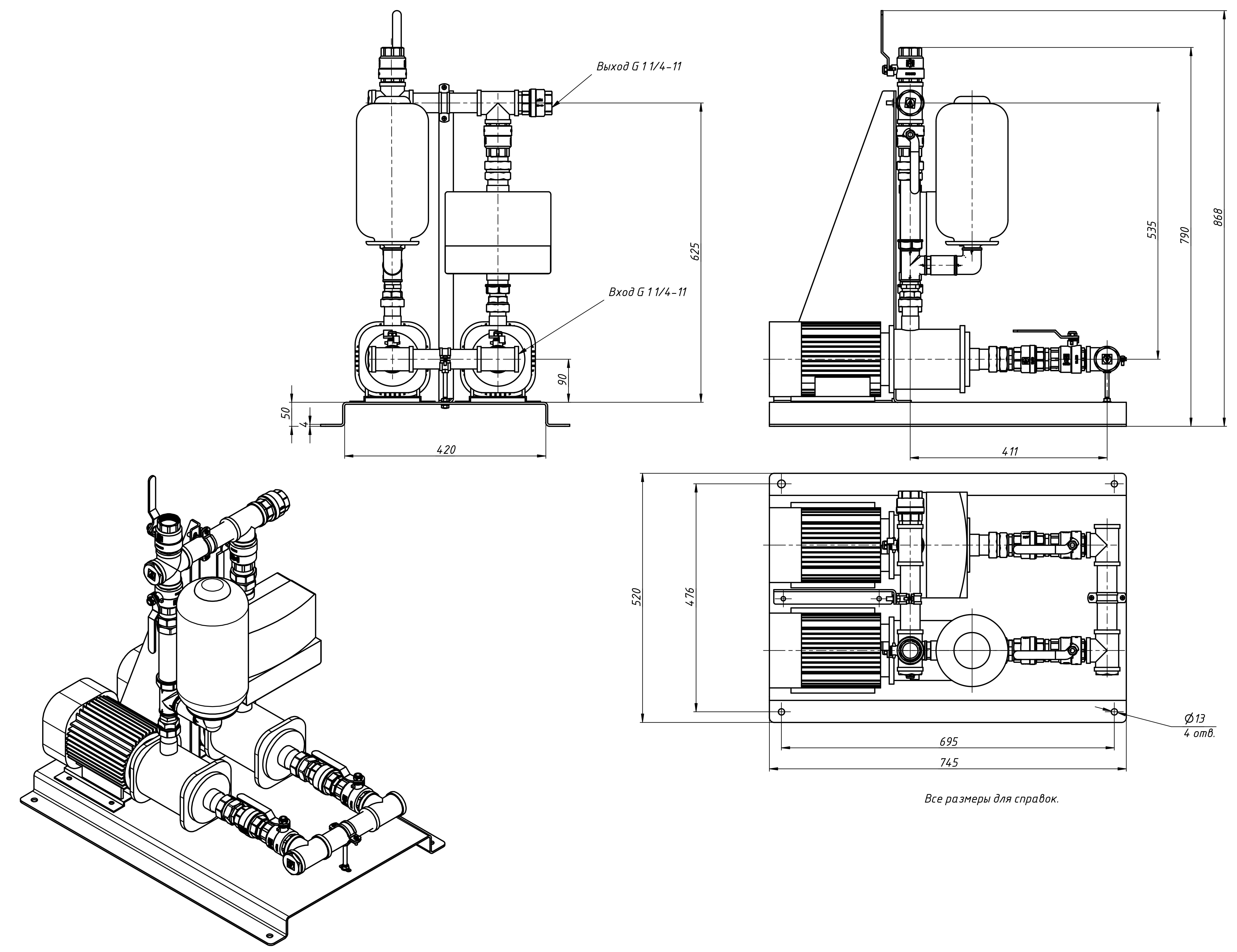
Размеры
750х520х820
Масса
68 кг
Вход
1 1/4``
Выход
1 1/4``
Мощность
1,3+1,3 кВт

Цена с НДС

139100

Заказать


Описание:
Насосная установка 2ЦМН 4-6 с блоком SKF-01 предназначена для автоматического поддержания давления в трубопроводе.
Она использует два горизонтальных многоступенчатых несамовсасывающих насоса ЦМН-4-6: один (основной) на 380 вольт, второй (дополнительный) - на 220 вольт.
Вся система питается от однофазной сети 220 В.

Автоматическая насосная установка 2ЦМН состоит из двух центробежных насосов, рамы из нержавеющей стали, обвязки (фитингов, обратных клапанов и кранов) и гидроаккумулятора объёмом 5 литров. Поточная часть насосов ЦМН изготовлена из нержавеющей стали.

Алгоритм работы станции: при падении давления в системе включается первый насос, работа которого регулируется частотным преобразователем. Если первому насосу не хватает производительности, то включается второй насос, который работает в каскадном режиме (в режиме включения/выключения). При прекращении расхода воды насосы автоматически отключаются.
На видео справа работа станции снята в самых разных режимах.
Видео снято на нашем производстве при испытании готовой насосной станции.

Технические характеристики:
- количество насосов - 2: ЦМН 4-6 (380В) - основной насос, который питается через частотный преобразователь, и ЦМН 4-6 (220В) - ведомый (вспомогательный) насос,
- насосы ЦМН - несамовсасывающие,
- возможный диапазон установки давления: от 1 до 9 атм. (при отсутствии давления на входе максимальное давление станции составит 4-5 атм., согласно гидравлическим характеристикам насосов),
- максимальное давление на входе в станцию (подпор) - 4 атм.,
- максимальная суммарная подача двух насосов при околонулевом давлении - 12 кубометров в час,
- максимальная температура жидкости - +45ºC,
- диапазон регулировки частоты - от 20 до 60 Гц,
- давление включения установки - на 0,5 атм. ниже установленного рабочего давления,
- индикация рабочего давления,
- индикация работающих насосов,
- защита от сухого хода,
- возможно подключение трубопроводов и справа, и слева,
- степень защиты блока управления: IP65,
- напряжение питания: 220 В.

*Максимальное давление в корпусе насоса не должно превышать 9 атм.